projekty
m a t ě j š e b e k a r c h i t e k t i
info

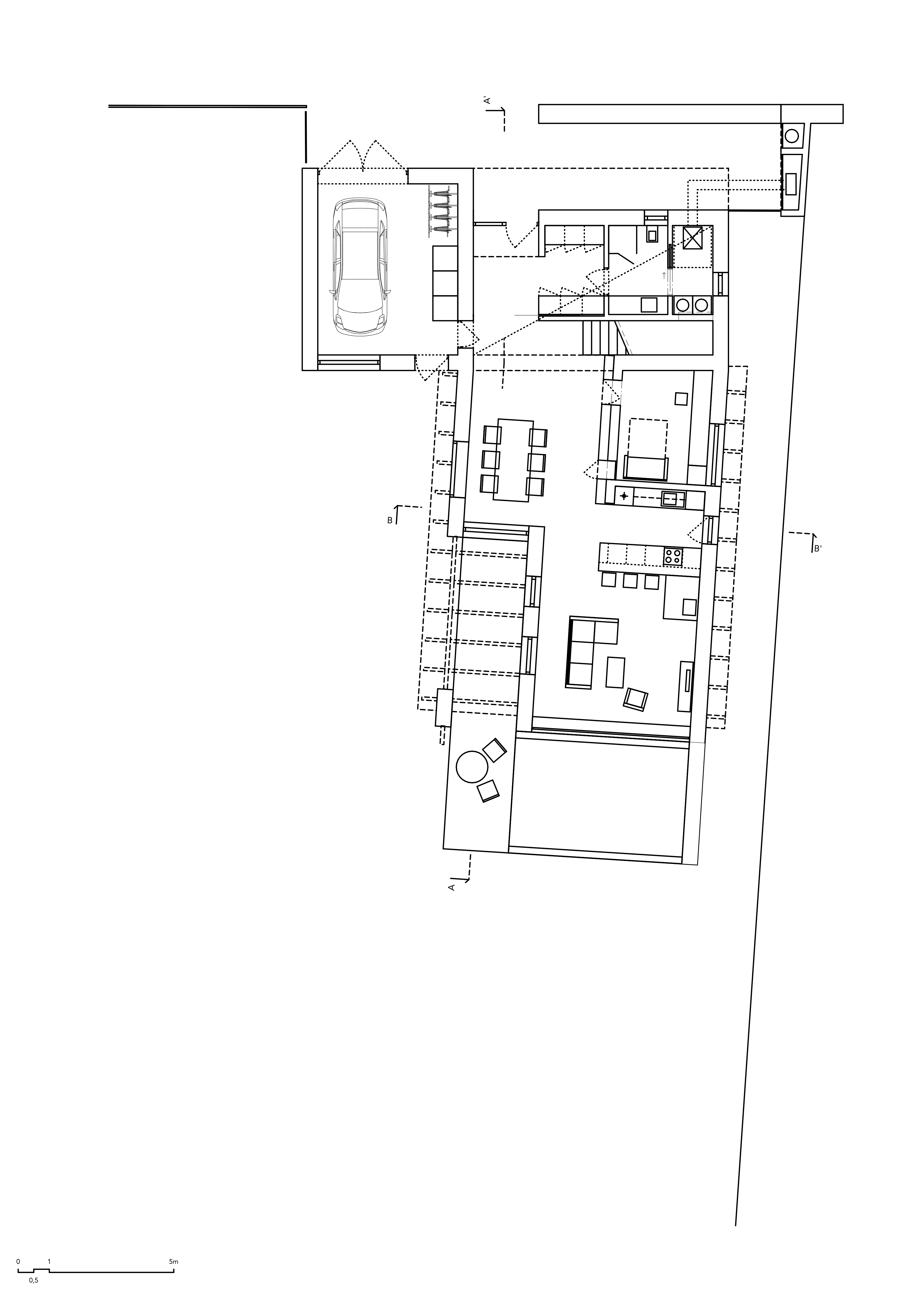
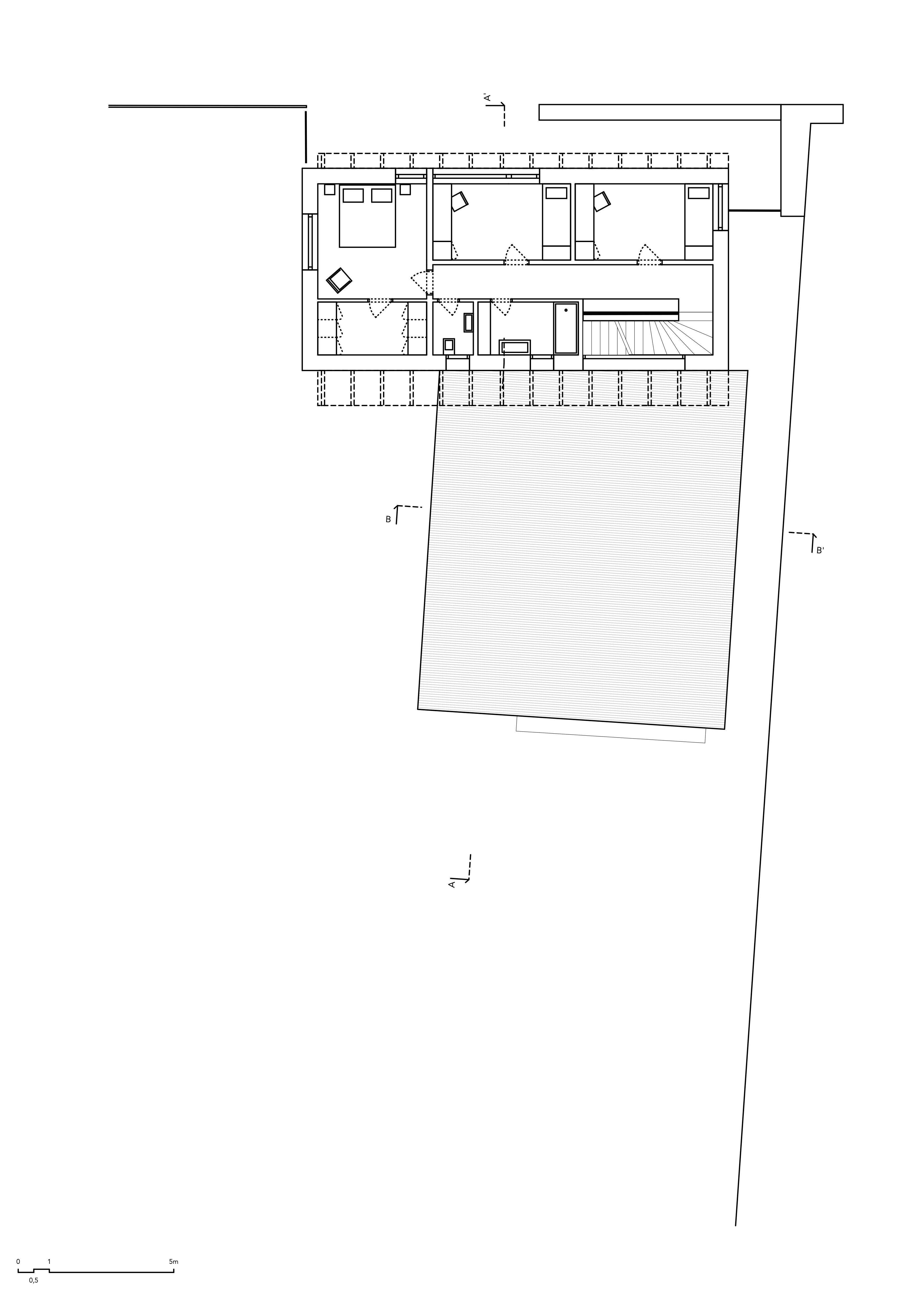
19–03 dům s bazénem

autoři: Matěj Šebek, Martin Petřík / foto: Radek Úlehla / návrh: 2019, realizace: 2020 / Tlustovousy

Místo stavby rodinného domu se nachází v nově vznikající satelitní části obce Tlustovousy, v lokalitě bývalého statku. Parcelace je fádní a typizovaná. Okolní domy nereflektují kontext svých pozemků ani vzájemných vztahů. Navrhovaný dům formujeme s ohledem na světové strany, soukromí obyvatelů a funkční provázání jednotlivých místností uvnitř – kvalitu bydlení. Hledáme tvář k ulici, od které se dům kaskádovitě rozpadá do zahrady – v ploše i prostoru. Každý zářez do domu je oknem – orientovaný na jižní stranu. Vzniká dům ve tvaru zalomeného L. Bazén na jižní straně je integrální součástí domu, zpřítomněný v interiéru, podélnou krytou terasou na straně západní připnutý k domu.