projekty
m a t ě j š e b e k a r c h i t e k t i
info

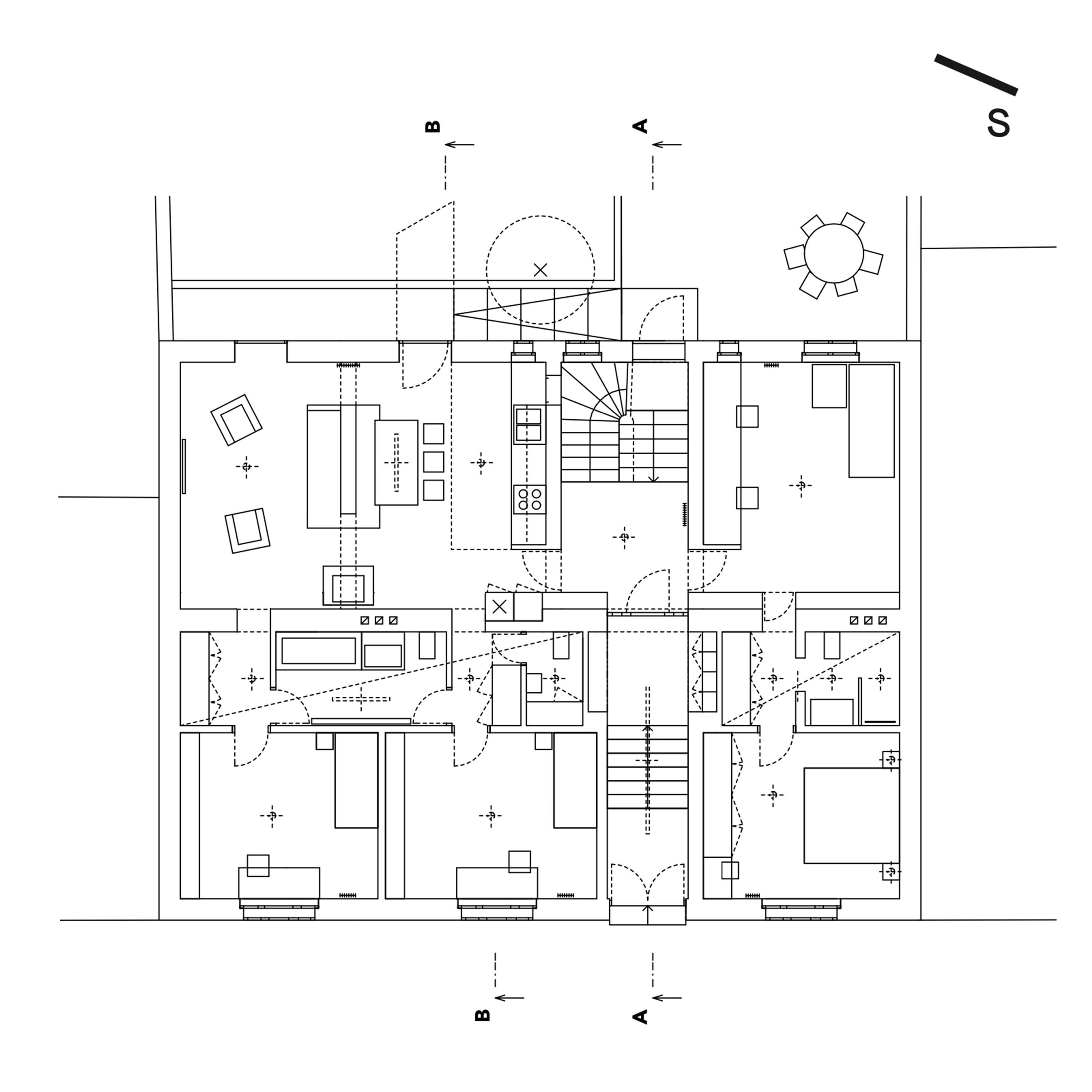
16–11 dům lékárníka

autoři: Matěj Šebek, Martin Petřík / foto: Radek Úlehla / návrh: 2016, realizace: 2019-2023 / Jindřichův Hradec
ocenění: Ročenka česká architektura 2023-2024 / Interiér roku 2023 cena hl. partnera

Poctivě stavěný rodinný řadový dům si nechal v roce 1911 realizovat místní lékárník. Kvalitní materiály, precizované detaily, prostorová velkorysost, nezbytná míra romantického historismu.